当前位置: 首页> 轴承型号查询> IKO CFKR32R轴承

IKO CFKR32R轴承参数/图纸/资料

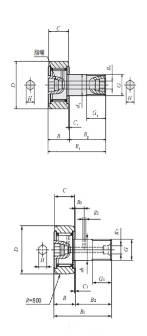
CFKR32RIKO轴承现货供应,库存丰富。滚轮轴承CFKR32R内径12mm,外径32mm,厚度14mm,属于原装进口IKO轴承凸轮从动轴承系列。欢迎来电咨询CFKR32R轴承基本参数,技术规格、相关型号等信息。同时我们提供轴承润滑脂,密封件,安装保养工具等售前售后服务!

CFKR32R轴承用途:挖掘机/ 回转机构传动装置、装载机、破碎机、小型船用齿轮箱、冲击式破碎机、织布机、货车轮对轴承、洗涤机械、纸浆和造纸、自动化设备、有轨电车、风机等领域。

CFKR32R轴承基本参数/技术规格

品牌
IKO
型号
CFKR32R
类型
滚轮轴承
系列
凸轮从动轴承
d
12mm
内径
D
32mm
外径
d
14mm
厚度
Cr
7.910KN
基本额定动载荷, 径向
Cor
9.790KN
基本额定静载荷,径向
Cur
-
疲劳极限载荷, 径向
nϑr
r/min
参考转速
nG
r/min
极限转速
≈m
0.104kg
重量
友情链接:
COPYRIGHT © 2021 INA-BEARING.CN
公司地址:无锡市无锡市崇安区兴源北路818号 公司电话:0510-82325353