当前位置: 首页> 轴承型号查询> IKO CFKR40R轴承

IKO CFKR40R轴承参数/图纸/资料

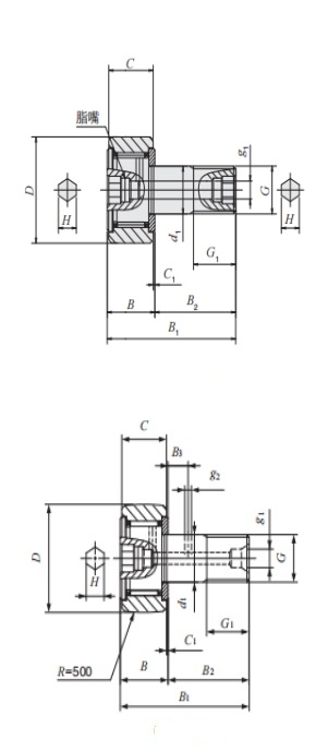
CFKR40RIKO轴承现货供应,库存丰富。滚轮轴承CFKR40R内径18mm,外径40mm,厚度20mm,属于原装进口IKO轴承凸轮从动轴承系列。欢迎来电咨询CFKR40R轴承基本参数,技术规格、相关型号等信息。同时我们提供轴承润滑脂,密封件,安装保养工具等售前售后服务!

CFKR40R轴承用途:印刷机械、木工机械、铣床主轴、光伏电站、冲击式破碎机、卡车、输送机惰轮/ 通用、振动磨机、辊式破碎机、大型电动机、测试台与设备、采矿与建筑机械等领域。

CFKR40R轴承基本参数/技术规格

品牌
IKO
型号
CFKR40R
类型
滚轮轴承
系列
凸轮从动轴承
d
18mm
内径
D
40mm
外径
d
20mm
厚度
Cr
148KN
基本额定动载荷, 径向
Cor
252KN
基本额定静载荷,径向
Cur
-
疲劳极限载荷, 径向
nϑr
r/min
参考转速
nG
r/min
极限转速
≈m
0.250kg
重量
友情链接:
COPYRIGHT © 2021 INA-BEARING.CN
公司地址:无锡市无锡市崇安区兴源北路818号 公司电话:0510-82325353