当前位置: 首页> 轴承型号查询> IKO CFKR62V轴承

IKO CFKR62V轴承参数/图纸/资料

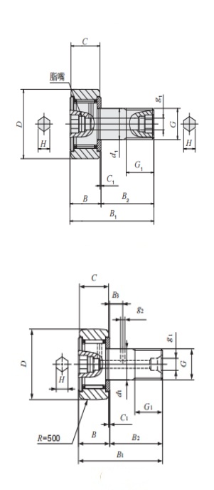
CFKR62VIKO轴承现货供应,库存丰富。滚轮轴承CFKR62V内径24mm,外径62mm,厚度29mm,属于原装进口IKO轴承凸轮从动轴承系列。欢迎来电咨询CFKR62V轴承基本参数,技术规格、相关型号等信息。同时我们提供轴承润滑脂,密封件,安装保养工具等售前售后服务!

CFKR62V轴承用途:精纺机/ 锭子、钢铁厂、透平机械、采矿与建筑机械、家用电器、矿物加工和水泥、振动压路机、工业传动、废弃及循环再利用、输送设备、橡塑机械、离心铸机等领域。

CFKR62V轴承基本参数/技术规格

品牌
IKO
型号
CFKR62V
类型
滚轮轴承
系列
凸轮从动轴承
d
24mm
内径
D
62mm
外径
d
29mm
厚度
Cr
46.6KN
基本额定动载荷, 径向
Cor
92KN
基本额定静载荷,径向
Cur
-
疲劳极限载荷, 径向
nϑr
r/min
参考转速
nG
r/min
极限转速
≈m
0.8kg
重量
友情链接:
COPYRIGHT © 2021 INA-BEARING.CN
公司地址:无锡市无锡市崇安区兴源北路818号 公司电话:0510-82325353