当前位置: 首页> 轴承型号查询> IKO CFKR62VUUR轴承

IKO CFKR62VUUR轴承参数/图纸/资料

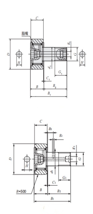
CFKR62VUURIKO轴承现货供应,库存丰富。滚轮轴承CFKR62VUUR内径24mm,外径62mm,厚度29mm,属于原装进口IKO轴承凸轮从动轴承系列。欢迎来电咨询CFKR62VUUR轴承基本参数,技术规格、相关型号等信息。同时我们提供轴承润滑脂,密封件,安装保养工具等售前售后服务!

CFKR62VUUR轴承用途:带传动、货车轮对轴承、输送机惰轮/ 通用、铁路车辆用齿轮箱、起重运输机械、挖掘机/ 行走机构传动装置、物料输送、轧机齿轮箱、自行式机械、装载机、挖掘机/ 行走机构传动装置、泵等领域。

CFKR62VUUR轴承基本参数/技术规格

品牌
IKO
型号
CFKR62VUUR
类型
滚轮轴承
系列
凸轮从动轴承
d
24mm
内径
D
62mm
外径
d
29mm
厚度
Cr
46.6KN
基本额定动载荷, 径向
Cor
92KN
基本额定静载荷,径向
Cur
-
疲劳极限载荷, 径向
nϑr
r/min
参考转速
nG
r/min
极限转速
≈m
0.8kg
重量
友情链接:
COPYRIGHT © 2021 INA-BEARING.CN
公司地址:无锡市无锡市崇安区兴源北路818号 公司电话:0510-82325353