当前位置: 首页> 轴承型号查询> IKO CFKR85V轴承

IKO CFKR85V轴承参数/图纸/资料

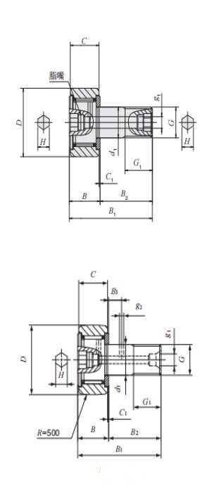
CFKR85VIKO轴承现货供应,库存丰富。滚轮轴承CFKR85V内径30mm,外径85mm,厚度35mm,属于原装进口IKO轴承凸轮从动轴承系列。欢迎来电咨询CFKR85V轴承基本参数,技术规格、相关型号等信息。同时我们提供轴承润滑脂,密封件,安装保养工具等售前售后服务!

CFKR85V轴承用途:泵和压缩机、机床、锤式磨机、有轨电车、挖掘机/ 行走机构传动装置、收割机、风机、船舶、矿物加工和水泥、输送机惰轮、风力发电机、汽车和轻型卡车等领域。

CFKR85V轴承基本参数/技术规格

品牌
IKO
型号
CFKR85V
类型
滚轮轴承
系列
凸轮从动轴承
d
30mm
内径
D
85mm
外径
d
35mm
厚度
Cr
67.7KN
基本额定动载荷, 径向
Cor
144KN
基本额定静载荷,径向
Cur
-
疲劳极限载荷, 径向
nϑr
r/min
参考转速
nG
r/min
极限转速
≈m
2.020kg
重量
友情链接:
COPYRIGHT © 2021 INA-BEARING.CN
公司地址:无锡市无锡市崇安区兴源北路818号 公司电话:0510-82325353